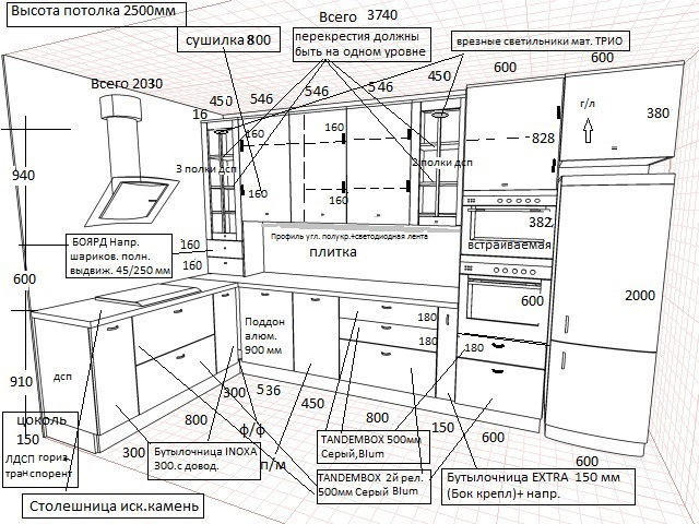
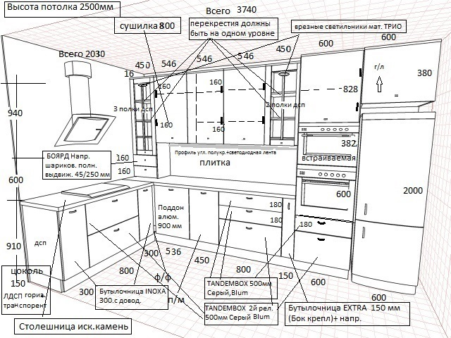
Кухонный гарнитур эмаль

311901

Корпус ЛДСП + кромка abc
Фасады МДФ Эмаль матовая
Витрины МДФ Эмаль матовая + стекло
Петли Blum с доводчиком
Посудодержатель с поддоном
Ящики TANDEMBOX Blum
Направляющие полного выдвижения
Выкатная корзина
Ручки крутые
Поддон алюминиевый 900 мм. ИТАЛИЯ
Подсветка Светильники + Профиль угловой для светодиодной ленты + светодиодная лента + трансформатор

Кухня полностью может быть изменена под ваши характеристики

В стоимости учтен только гарнитур. Столешница, фартук, подсветка приобретаются дополнительно

Добавить отзыв
Ваша оценка: